X7
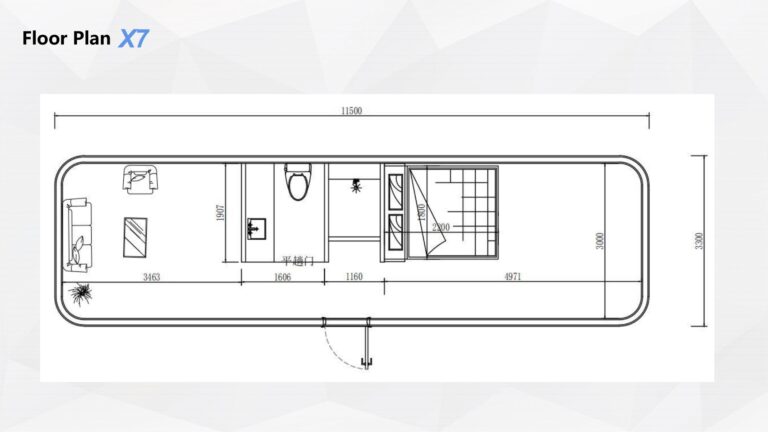
X7 je premium “capsule” model za glamping/resort smještaj i privatne projekte gdje želiš wow efekt i panoramski doživljaj. Dolazi gotovo potpuno dovršen (instalacije + kupaonica), uz opcije poput kuhinje i dodatne opreme (klima, bojler, podno grijanje, pametni sustavi).
Dimenzije: 11,5 × 3,3 × 3,3 m • Površina: 38 m²
V9
V9 je prostran model idealan kao smještajna jedinica za turizam (resorti/kampovi), s fleksibilnim tlocrtnim rješenjima (raspored se može prilagoditi). Konstrukcija je čelični okvir + aluminijska školjka, uz višeslojnu izolaciju i Low-E kaljeno staklo.
Dimenzije: 11,5 × 3,3 × 3,3 m • Površina: 38 m²
Proizvodi
M9
1F: Duljina: 11,5m Širina: 3,4m Visina: 3,45m
2F: Duljina: 10,7m Širina: 3,3m Visina: 3,45m
Površina: 74,5m²
M7
1F: Duljina: 11,5m Širina: 3,3m Visina: 3,3m
2F: Duljina: 8,5m Širina: 3,3m Visina: 3,3m
Površina: 66m²



















































